$614,900

SD06C 161 Terrastone Ridge Ridge

Dartmouth Nova Scotia B2X 0C4

Single Family
1660.0 square feet
3
3/1
MLS® 202604814
Listing Courtesy of Royal LePage Atlantic

Description

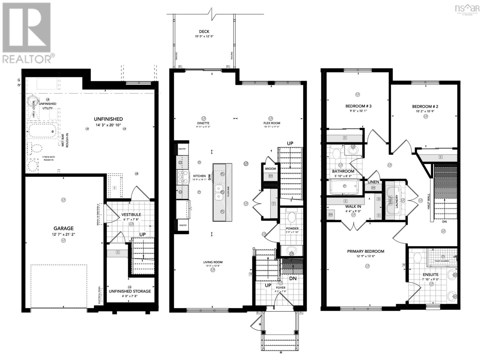
Cresco proudly introduces The Fairbanks, a chic 3-bedroom townhome nestled in HRMs hottest new subdivision, The Parks of Lake Charles. This stylish three-level townhome boasts a garage with unfinished basement allowing you to finish it when you need, as you need. Step inside to find three cozy bedrooms, 2 full bathrooms, and a handy powder room on the main floor. The main level is designed for ultimate comfort, featuring a spacious living room, a dining area perfect for gatherings, a well-equipped kitchen with a pantry, and a convenient half bath. On the second floor, relax in the luxurious primary suite with its own bathroom and walk-in closet, along with two additional bedrooms and a practical main bathroom. Plus, theres a dedicated laundry room for added ease. The lower level is unfinished and offers a future recreational room, a rough-in for a full bath and a wetbar rough in, or allowing you to finish it your way. The Fairbanks perfectly blends modern style with practical design, creating a cozy and inviting space in a prime location. Disclaimer - Photos shown are facsimiles only and colour selections may vary depending on the unit (id:56844)

ID:
202604814
Category:
Single Family
Status:
Active
Living Area:
1660.0 square feet
Stories:
2.00
Bathrooms:
3
Bathrooms (partial):
1
Bedrooms:
3
Lot:
0.0648 acres
MLS® Number:
202604814
Common Interest
Freehold
Parcel Number:
41562240
Building Type:
Row / Townhouse
Community Name:
Dartmouth
Days On Market:
34
Community Features
  • School Bus
  • Recreational Facilities
Appliances
  • Microwave Range Hood Combo
Cooling
  • Heat Pump
Architectural Style:
  • 3 Level
Foundationd Details:
  • Poured Concrete
Exterior Features:
  • Stone
  • Vinyl
Flooring:
  • Hardwood
  • Laminate
  • Ceramic Tile
Parking Features:
  • Garage
  • Paved Yard
Structure Type:
  • Row / Townhouse
Water Source:
  • Municipal water
Sewer:
  • Municipal sewage system
Foyer 4.5 x 7.8
Living room 12.5 x 12.8
Bath (# pieces 1-6) 3.9 x 7.10
Kitchen 13.9 x 14.1
Dining nook 9.11 x 11.5
Family room 10.11 x 11.6
Primary Bedroom 12.9 x 13.8
Ensuite (# pieces 2-6) 7.10 x 9.0
Bath (# pieces 1-6) 5.10 x 8.3
Bedroom 10.2 x 10.9
Bedroom 9.0 x 10.1
Waverley Road to Terrastone Ridge
Neighbourhood map for property at SD06C 161 Terrastone Ridge Ridge
SD06C 161 Terrastone Ridge Ridge Dartmouth
Provincial Map showing SD06C 161 Terrastone Ridge Ridge
SD06C 161 Terrastone Ridge Ridge Dartmouth

Inquire Today

Name is required.
Phone is required.
Valid email is required.
Message is required.
Please complete the captcha.
Powered By Realtor logo MLS® Listing data is provided by The Canadian Real Estate Association (CREA) and is deemed reliable but not guaranteed. The trademarks REALTOR®, REALTORS®, and the REALTOR® logo are controlled by CREA and identify real estate professionals who are members of CREA. The trademarks MLS®, Multiple Listing Service® and related logos are owned by CREA and identify the quality of services provided by real estate professionals who are members of CREA. Listing information is provided by participating real estate brokerages.

Similar Listings