Description
Welcome to 20 Indian Point Roadan exceptional, fully updated century home offering over 200 feet of direct ocean frontage. Set on a beautifully landscaped lot, this property is a true haven for outdoor enthusiasts. Enjoy boating, kayaking, canoeing, and swimming right from your own backyard. This stunning waterfront residence blends timeless elegance with modern comfort. The main floor features a bright, open-concept layout where the kitchen, dining, and living areas flow seamlessly together, all framed by panoramic ocean views. Upstairs, youll find a spacious primary bedroom, a second bedroom, and a generously sized bathroom designed for both style and function. The full basement includes a dedicated laundry area and ample storage space. Outside, a detached double garage and garden shed provide added convenience and versatility. Located just 20 minutes from Peggys Cove and 34 minutes from downtown Halifax, this home offers the perfect balance of peaceful coastal living and easy access to city amenities. Whether youre searching for a year-round residence or a seasonal retreat, this unique waterfront property is a rare opportunity. An ideal setting for gardening, birdwatching, and simply enjoying the natural beauty that surrounds you. (id:56844)
- ID:
- 202608694
- Category:
- Single Family
- Status:
- Active
- Living Area:
- 1716.0 square feet
- Stories:
- 2.00
- Bathrooms:
- 1
- Bedrooms:
- 2
- Lot:
- 0.7713 acres
- MLS® Number:
- 202608694
- Common Interest
- Freehold
- Parcel Number:
- 00526079
- Year Built:
- 1916
- Building Type:
- Recreational
- Community Name:
- Glen Haven
- Days On Market:
- 0
- Ocean view
- View of water
- Level
- Recreational
- Sump Pump
- Waterfront
- School Bus
- Washer
- Refrigerator
- Dishwasher
- Stove
- Dryer
- Wall unit
- Heat Pump
- Poured Concrete
- Unfinished
- Full
- Vinyl
- Hardwood
- Laminate
- Ceramic Tile
- Detached Garage
- Garage
- Paved Yard
- Recreational
- Drilled Well
- Septic System
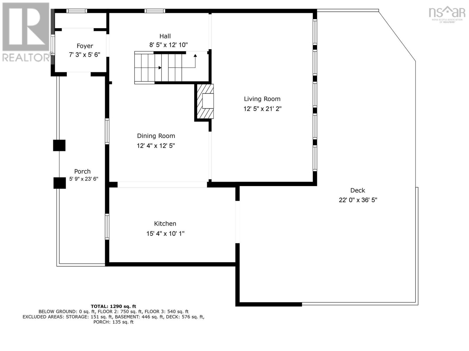
| Foyer | 5. x 5 | |
| Kitchen | 15.2 x 9.6 | |
| Dining room | 12.6 x 12 | |
| Living room | 21.1 x 12.3 |
| Bath (# pieces 1-6) | 8.1 x 15.5 | |
| Primary Bedroom | 21. x 9 | |
| Bedroom | 12.2 x 12.5 | |
| Storage |