Description
Discover the charm of Riverside Corner, where two turnkey homes are currently under construction on spacious one acre, tree filled lots. These homes will offer one level living, featuring three bedrooms, two baths, and a built in garage, perfect for comfortable and convenient living. Alongside these homes, Riverside Corner offers five approved and perc tested one acre building lots, providing an excellent opportunity to create your own dream home. Located just moments from Kennetcook, Nova Scotia, Riverside Corner blends peaceful rural living with convenience, only about 45 minutes to Halifax and 40 minutes to Stanfield International Airport. Whether building or settling in soon, this exclusive development puts the best of both worlds within easy reach! (id:56844)
- ID:
- 202608437
- Category:
- Single Family
- Status:
- Active
- Living Area:
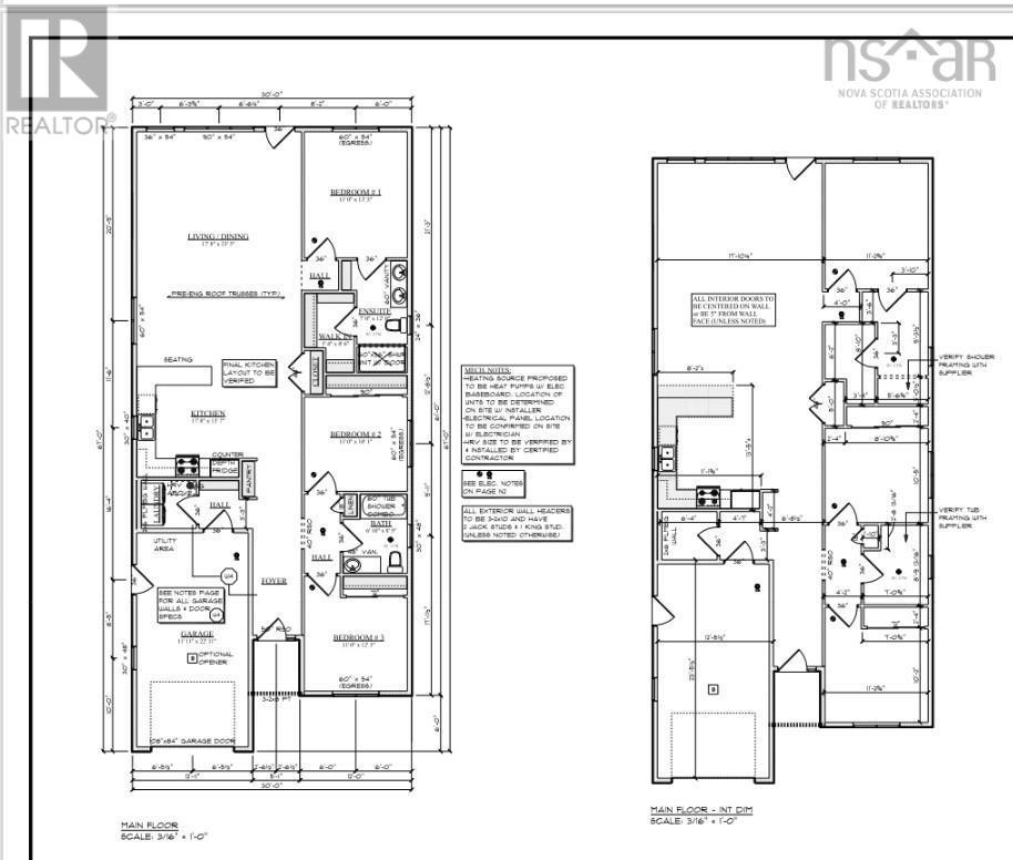
- 1568.0 square feet
- Stories:
- 1.00
- Bathrooms:
- 2
- Bedrooms:
- 3
- Lot:
- 1.2355 acres
- MLS® Number:
- 202608437
- Common Interest
- Freehold
- Parcel Number:
- 45438322
- Year Built:
- 2026
- Building Type:
- House
- Community Name:
- Riverside Corner
- Days On Market:
- 0
- Heat Pump
- Concrete Slab
- Poured Concrete
- None
- Vinyl
- Vinyl Plank
- Garage
- Gravel
- House
- Drilled Well
- Septic System
| Living room | 17.8x23.5 | |
| Kitchen | 17.8x13.7 | |
| Primary Bedroom | 11x13.5 | |
| Ensuite (# pieces 2-6) | 12x7 | |
| Bedroom | 11x10.1 | |
| Bath (# pieces 1-6) | 6.10x8.5 | |
| Bedroom | 11x12.3 |