$549,900

123 Minas Crescent

New Minas Nova Scotia B4N 4H1

Single Family
2133.0 square feet
2
2/1
MLS® 202607323
Listing Courtesy of MacKay Real Estate Ltd.

Description

This well-maintained bungalow offers exceptional value with a long list of thoughtful upgrades and versatile living space. Featuring 2 bedrooms with a spacious primary (originally two rooms, easily converted back), this home also offers the potential to grow into a 34 bedroom layout with the addition of an egress window and wall in the basement. Enjoy peace of mind with key updates including a 3-year-old roof, windows and kitchen (2008), basement remodel (8 years ago) with new subfloor and interior weeping tile system, plus a sump pump supported by a propane generator that powers the sump, propane fireplace, fridge, furnace, and select lighting during outages. The home includes 1.5 bathrooms, hardwood flooring in the main living space, and a heat pump in the basement for efficient comfort. The lower level features a large rec room, a spacious laundry area, flexible space for a future bedroom, a gym area with rubberized flooring, and plenty of storage. Step outside to a fully fenced yard with a large 2-year-old back deck, an above-ground pool with propane heater (also 2 years old), and a 12x12 shedperfect for outdoor living and entertaining. All appliances are under 5 years old. Located in a welcoming neighbourhood close to schools and amenities, this property is ideal for singles, families, or anyone looking for a home with both comfort and future potential. Please note: the culvert on the left side of the driveway is being repaired by the seller. (id:56844)

ID:
202607323
Category:
Single Family
Status:
Active
Living Area:
2133.0 square feet
Stories:
1.00
Bathrooms:
2
Bathrooms (partial):
1
Bedrooms:
2
Lot:
0.3163 acres
MLS® Number:
202607323
Common Interest
Freehold
Parcel Number:
55201560
Year Built:
1967
Building Type:
House
Community Name:
New Minas
Days On Market:
6
Lot Features
  • Treed
  • Sump Pump
Pool Features
  • Above ground pool
Community Features
  • School Bus
  • Recreational Facilities
Appliances
  • Washer
  • Refrigerator
  • Dishwasher
  • Oven
  • Dryer
Cooling
  • Wall unit
  • Heat Pump
Architectural Style:
  • Bungalow
Foundationd Details:
  • Poured Concrete
Basement:
  • Partially finished
  • Full
Exterior Features:
  • Vinyl
Flooring:
  • Tile
  • Hardwood
  • Laminate
  • Other
Parking Features:
  • Paved Yard
Structure Type:
  • House
Water Source:
  • Municipal water
Sewer:
  • Municipal sewage system
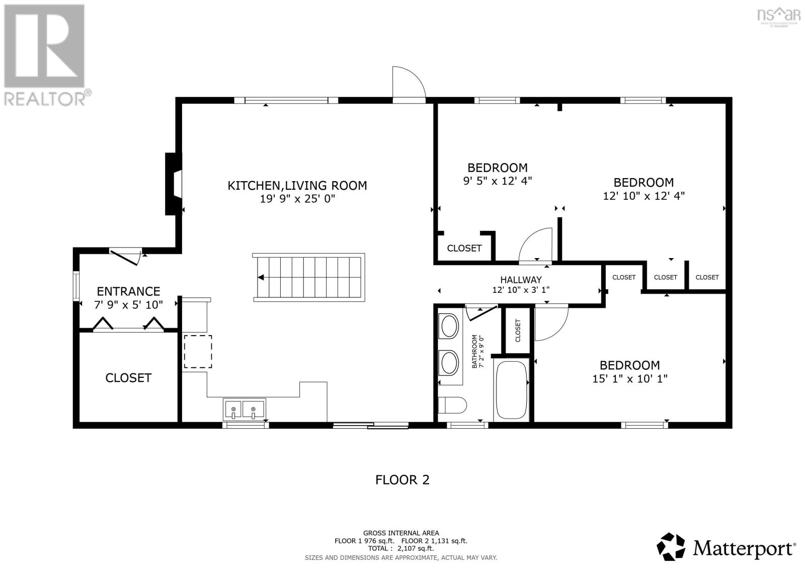
Foyer 6x7.7
Kitchen 14.8x9.7
Dining nook 5.6x9.5
Living room 11.11x19.11
Bath (# pieces 1-6) 9x6.11
Bedroom 15.4x10.1
Primary Bedroom 22.11x12.6
Laundry room 14.10x4.11
Bath (# pieces 1-6) 9.4x4.7
Recreational, Games room 23.6x10.5 + 11.11x6.3
Other 10.10x17.6 Gym
Utility room 13.10x10.11
Storage 9x6.11
Take Prospect Road, turn onto Perrier Drive, LFT onto Jill Street, RHT onto Minas Crescent, Home on the LHS
Neighbourhood map for property at 123 Minas Crescent
123 Minas Crescent New Minas
Provincial Map showing 123 Minas Crescent
123 Minas Crescent New Minas

Inquire Today

Name is required.
Phone is required.
Valid email is required.
Message is required.
Please complete the captcha.
Powered By Realtor logo MLS® Listing data is provided by The Canadian Real Estate Association (CREA) and is deemed reliable but not guaranteed. The trademarks REALTOR®, REALTORS®, and the REALTOR® logo are controlled by CREA and identify real estate professionals who are members of CREA. The trademarks MLS®, Multiple Listing Service® and related logos are owned by CREA and identify the quality of services provided by real estate professionals who are members of CREA. Listing information is provided by participating real estate brokerages.

Similar Listings