$593,900

107 Alabaster Way

Halifax Nova Scotia B3P 0C5

Single Family
1319.0 square feet
3
3/1
MLS® 202606032
Listing Courtesy of RE/MAX Nova

Description

Welcome to 107 Alabaster Way, a charming and affordably priced new construction home in the sought-after Governors Brook subdivision in Spryfield, NS. This vibrant yet peaceful community is perfect for families seeking connection, convenience, and outdoor amenities.Step inside to discover a bright, open-concept main floor, thoughtfully designed for modern living. The comfortable living and dining areas flow seamlessly together, creating an inviting space for entertaining or keeping an eye on little ones. The kitchen features stylish finishes and ample counter space, making it both functional and beautiful. Upstairs, youll find three generously sized bedrooms, offering plenty of room for a growing family. The primary bedroom provides a peaceful retreat with ample closet space,while the additional bedrooms are perfect for children, guests, or a home office. One of the standout features of this home is the attached garage, providing convenience and extra storageideal for keeping your vehicle sheltered during the winter months or storing outdoor gear. Governors Brook is known for its family-friendly atmosphere, with parks, walking trails, and easy access to schools and recreational facilities. Plus, with shopping, dining, and essential services just minutes away, everything you need is within reach. This home offers the perfect blend of affordability, comfort, and community, making it an excellent opportunity for first-time buyers or families looking to settle in a welcoming neighborhood. Currently under construction, this homealong with several other modelswill be move-in ready in June 2026. Dont miss your chance to be part of this thriving community! (id:56844)

ID:
202606032
Category:
Single Family
Status:
Active
Living Area:
1319.0 square feet
Stories:
2.00
Bathrooms:
3
Bathrooms (partial):
1
Bedrooms:
3
Lot:
0.1377 acres
MLS® Number:
202606032
Common Interest
Freehold
Parcel Number:
41360819
Building Type:
House
Community Name:
Halifax
Days On Market:
19
Community Features
  • School Bus
  • Recreational Facilities
Appliances
  • Washer
  • Dryer - Electric
  • Refrigerator
  • Dishwasher
  • Stove
  • Microwave Range Hood Combo
  • Central Vacuum - Roughed In
Cooling
  • Heat Pump
Foundationd Details:
  • Poured Concrete
Basement:
  • Unfinished
  • Full
Exterior Features:
  • Vinyl
Flooring:
  • Laminate
  • Carpeted
  • Ceramic Tile
Parking Features:
  • Attached Garage
  • Garage
  • Paved Yard
Structure Type:
  • House
Water Source:
  • Municipal water
Sewer:
  • Municipal sewage system
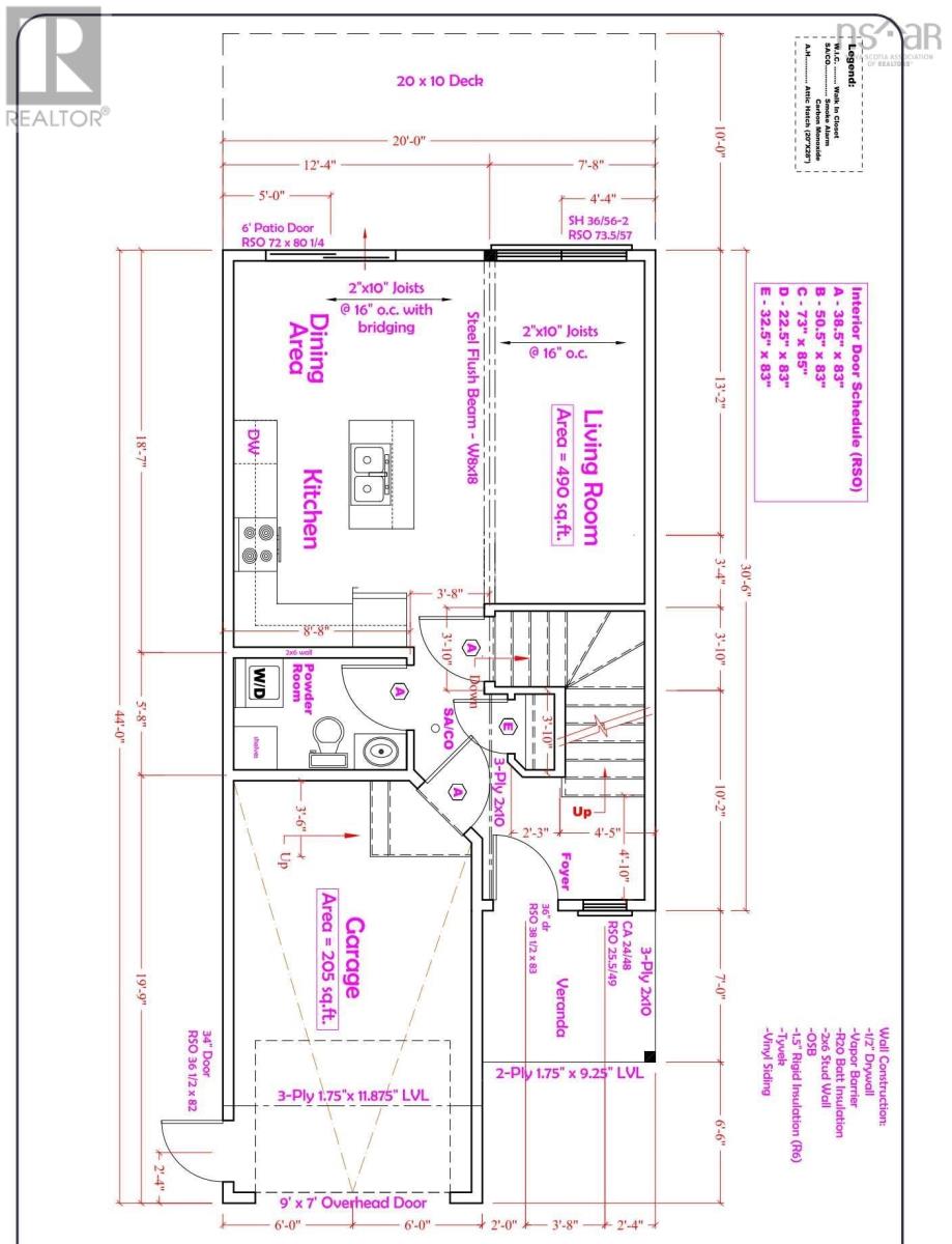
Foyer 7.6 x 4.1 / +jog
Eat in kitchen 17.11 x 9.6
Living room 15.1 x 9.6
Bath (# pieces 1-6) 8.0 x 5.4
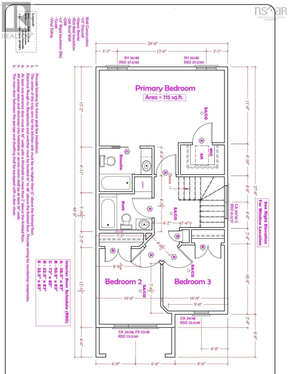
Primary Bedroom 19.0 x 11.6
Ensuite (# pieces 2-6) 8.0 x 4.0
Bedroom 13.4 x 9.4 / +jog
Bedroom 10.0 x 9.4
Bath (# pieces 1-6) 8.0 x 5.6
Herring Cove to Drysdale to Alabaster
Neighbourhood map for property at 107 Alabaster Way
107 Alabaster Way Halifax
Provincial Map showing 107 Alabaster Way
107 Alabaster Way Halifax

Inquire Today

Name is required.
Phone is required.
Valid email is required.
Message is required.
Please complete the captcha.
Powered By Realtor logo MLS® Listing data is provided by The Canadian Real Estate Association (CREA) and is deemed reliable but not guaranteed. The trademarks REALTOR®, REALTORS®, and the REALTOR® logo are controlled by CREA and identify real estate professionals who are members of CREA. The trademarks MLS®, Multiple Listing Service® and related logos are owned by CREA and identify the quality of services provided by real estate professionals who are members of CREA. Listing information is provided by participating real estate brokerages.

Similar Listings