$2,899,900

173 St Margaret's Bay Road

Halifax Nova Scotia B3N 1K8

Other
MLS® 202605686
Listing Courtesy of Engel & Volkers

Description

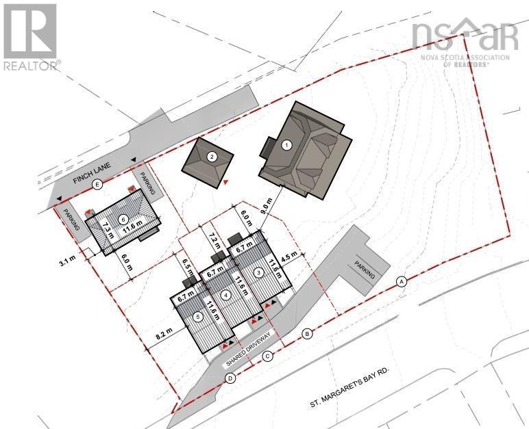
Positioned on a generous parcel along sought-after St. Margarets Bay Road, this rare offering presents a compelling blend of immediate income, approved development potential, and long-term upside. The historic residence known as Craigmore sits on a property now supported by an approved Development Agreement, enabling subdivision into five distinct lots and the construction of a luxury duplex, a substantial three-unit townhome, plus the opportunity to add an additional unit by converting the existing detached garage. Importantly, the Development Agreement predates the Housing Accelerator zoning changes, offering prospective purchasers the potential to explore enhanced density options as planning policies evolve. The existing structure is a legal over-under duplex with established tenants, providing stable holding income while future plans are realized. Steeped in local history, Craigmore was originally built in 1908 and reflects classic Arts & Crafts / Cottage architectural influences. Mature landscaped grounds, stone walls, and winding garden pathways contribute to the propertys timeless character and enduring curb appeal. A bronze plaque at the entrance commemorates its Gaelic name, meaning solid rock, a fitting tribute to both its heritage and its enduring presence within the North West Arm community. This is a rare opportunity to secure a strategically located development site with approved entitlements, current revenue, and meaningful future potential. Ideal for investors, builders, or developers seeking to create a signature residential enclave in one of Halifaxs most desirable corridors. (id:56844)

ID:
202605686
Category:
Other
Status:
Active
Lot:
0.7494 acres
MLS® Number:
202605686
Common Interest
Freehold
Parcel Number:
40577041
Year Built:
1909
Building Type:
Other
Community Name:
Halifax
Days On Market:
24
View
  • Ocean view
  • Harbour
Community Features
  • School Bus
  • Recreational Facilities
Appliances
  • Washer
  • Refrigerator
  • Dishwasher
  • Stove
  • Dryer
Cooling
  • Heat Pump
  • Air Conditioned
Building Features:
  • Fireplace(s)
Foundationd Details:
  • Block
  • Concrete Perimeter
Exterior Features:
  • Wood shingles
Flooring:
  • Tile
  • Hardwood
  • Carpeted
Parking Features:
  • Paved Yard
  • Other
  • Parking Space(s)
  • Interlocked
Structure Type:
  • Other
Utilities:
  • Cable Available
Water Source:
  • Municipal water
Sewer:
  • Municipal sewage system
From Quinpool Rd - take roundabout, 3rd exit: St Margaret's Bay Rd, then an immediate right onto #175. From Hwy 102 - take Joe Howe to roundabout, take first exit: St Margaret's Bay Rd, then an immediate right onto #175. You can also take Finch Lane to access additional parking on parking pad at rear of property.
Neighbourhood map for property at 173 St Margaret's Bay Road
173 St Margaret's Bay Road Halifax
Provincial Map showing 173 St Margaret's Bay Road
173 St Margaret's Bay Road Halifax

Inquire Today

Name is required.
Phone is required.
Valid email is required.
Message is required.
Please complete the captcha.
Powered By Realtor logo MLS® Listing data is provided by The Canadian Real Estate Association (CREA) and is deemed reliable but not guaranteed. The trademarks REALTOR®, REALTORS®, and the REALTOR® logo are controlled by CREA and identify real estate professionals who are members of CREA. The trademarks MLS®, Multiple Listing Service® and related logos are owned by CREA and identify the quality of services provided by real estate professionals who are members of CREA. Listing information is provided by participating real estate brokerages.

Similar Listings